(11) 3785-7918 (11) 99549-0336 contato@argenbrasengenharia.com.br

Projeto em Revit

Projeto em Revit

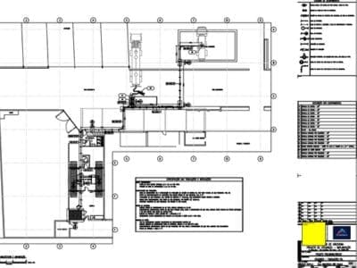
Projeto em Revit: A Solução Inteligente da Argenbras Engenharia

A importância do Projeto em Revit para empresas modernas

O Projeto em Revit vem se consolidando como uma das soluções mais avançadas no mercado de engenharia e construção civil. A Argenbras Engenharia entende que a transformação digital é um caminho sem volta e, por isso, adota o Revit como ferramenta estratégica para entregar resultados mais precisos, integrados e eficientes. Utilizar o Revit não significa apenas desenhar em 3D, mas sim desenvolver um modelo completo que integra informações técnicas, estruturais e elétricas em um único ambiente colaborativo.

O que é um Projeto em Revit?

Um Projeto em Revit é um modelo digital inteligente que reúne todas as informações necessárias para a execução de uma obra, seja ela predial, industrial ou logística. Diferente dos métodos tradicionais de desenho, o Revit utiliza o conceito de BIM (Building Information Modeling), permitindo uma visão integrada do projeto. Com essa metodologia, é possível prever interferências, calcular custos, dimensionar materiais e garantir maior qualidade desde a concepção até a execução da obra.

Por que escolher a Argenbras Engenharia para o seu Projeto em Revit?

  • Precisão nos detalhes: Cada componente é modelado com informações reais, garantindo confiabilidade no planejamento.
  • Agilidade na execução: Alterações no projeto são automaticamente refletidas em todas as vistas, economizando tempo e reduzindo retrabalhos.
  • Compatibilização eficiente: Arquitetura, elétrica, hidráulica e estrutura são integradas no mesmo modelo, evitando erros de compatibilidade.
  • Otimização de custos: O uso do Projeto em Revit permite identificar desperdícios e prever quantitativos com maior assertividade.

Benefícios do Projeto em Revit para diferentes segmentos

  • Projetos industriais: No setor industrial, um Projeto em Revit possibilita a criação de plantas elétricas e estruturais complexas com total integração. Isso garante que o cliente tenha uma visão clara da instalação antes mesmo do início da obra.
  • Galpões logísticos: Para galpões logísticos, o Projeto em Revit oferece a vantagem de dimensionar espaços de forma otimizada, considerando fluxos operacionais e aproveitamento máximo da área.
  • Instalações prediais: Já em instalações prediais, o Projeto em Revit proporciona maior segurança no cumprimento das normas técnicas e eficiência energética, além de facilitar a manutenção futura com informações detalhadas em cada elemento do modelo.

A inovação do BIM aplicada pela Argenbras Engenharia

Ao desenvolver um Projeto em Revit, a Argenbras Engenharia garante que o conceito BIM seja aplicado em sua totalidade. Isso significa que além do modelo visual, há uma base de dados completa associada a cada elemento do projeto. Essa inteligência facilita decisões estratégicas, reduz custos e assegura maior previsibilidade em todas as etapas.

O impacto positivo de um Projeto em Revit bem estruturado

A implementação de um Projeto em Revit impacta diretamente a produtividade, a qualidade e a sustentabilidade das obras. Com processos otimizados, é possível:

  • Reduzir atrasos no cronograma.
  • Antecipar conflitos de projeto.
  • Diminuir custos com retrabalhos.
  • Garantir maior transparência para o cliente.

Esses fatores fazem com que a Argenbras Engenharia seja reconhecida como parceira estratégica em projetos que exigem excelência e inovação.

Por que o Projeto em Revit é um diferencial competitivo?

No mercado cada vez mais competitivo, empresas que adotam o Projeto em Revit se destacam pela qualidade, eficiência e modernidade de suas soluções. A Argenbras Engenharia coloca essa tecnologia a serviço dos clientes, oferecendo projetos inteligentes, compatíveis e sustentáveis. Essa abordagem não apenas agrega valor ao empreendimento, mas também transmite segurança e confiança para investidores, construtores e usuários finais.

Projeto em Revit: um investimento no futuro

Adotar o Projeto em Revit é investir no futuro da construção civil e elétrica. A Argenbras Engenharia atua para que cada projeto seja não apenas uma representação gráfica, mas um guia completo que orienta toda a execução, manutenção e expansão do empreendimento. Dessa forma, clientes de diversos segmentos têm a tranquilidade de contar com soluções modernas, seguras e alinhadas às melhores práticas do mercado.

Se você busca eficiência, precisão e inovação, o Projeto em Revit da Argenbras Engenharia é a escolha certa. Cada detalhe é pensado para oferecer resultados superiores, reduzir custos e garantir a excelência em todas as etapas do seu projeto.

Entre em contato agora mesmo com a Argenbras Engenharia, solicite um orçamento e descubra como o Projeto em Revit pode transformar o seu empreendimento em um verdadeiro exemplo de inovação e qualidade.

Entre agora mesmo em contato com a Argenbras Engenharia para ter mais informações sobre: BIM para Instalações Elétricas Prediais, Compatibilização de Projetos Elétricos em Revit, Empresa de Projeto Contra Descargas Atmosféricas em SP.

Gostou? Compartilhe:

Artigos relacionados a :