(11) 3785-7918 (11) 99549-0336 contato@argenbrasengenharia.com.br

BIM para Instalações Elétricas Prediais

BIM para Instalações Elétricas Prediais

BIM para Instalações Elétricas Prediais: A Solução da Argenbras Engenharia

A importância do BIM para Instalações Elétricas Prediais

O BIM para Instalações Elétricas Prediais é uma das tecnologias mais inovadoras do setor da construção civil. A metodologia BIM (Building Information Modeling) permite criar modelos digitais inteligentes que integram todas as disciplinas da obra em um único ambiente. Quando aplicado às instalações elétricas prediais, o BIM garante maior precisão, eficiência e segurança, tornando-se um diferencial competitivo para construtoras, investidores e engenheiros. A Argenbras Engenharia é especialista na aplicação dessa tecnologia, desenvolvendo projetos que unem inovação, confiabilidade e economia.

O que é BIM para Instalações Elétricas Prediais?

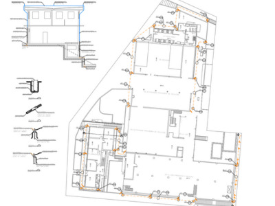
O BIM para Instalações Elétricas Prediais consiste na criação de um modelo digital tridimensional que contém todas as informações sobre as redes elétricas de uma edificação. Esse modelo abrange quadros elétricos, disjuntores, cabos, tomadas, pontos de iluminação e sistemas de emergência, todos parametrizados com dados técnicos reais. Isso permite planejar com exatidão cada detalhe, prever interferências e extrair relatórios completos para auxiliar no orçamento e na execução da obra.

Vantagens do BIM para Instalações Elétricas Prediais com a Argenbras Engenharia

Precisão nos detalhes
Com o BIM para Instalações Elétricas Prediais, a Argenbras Engenharia assegura cálculos exatos, posicionamento correto de componentes e total conformidade com as normas técnicas.

Compatibilização entre disciplinas
O BIM para Instalações Elétricas Prediais permite integração com projetos de arquitetura, hidráulica e estrutura, evitando conflitos e reduzindo retrabalhos.

Economia de tempo e custos
Ao identificar problemas ainda na fase de planejamento, o BIM para Instalações Elétricas Prediais garante maior previsibilidade de prazos e otimização de recursos.

Sustentabilidade e eficiência energética
O BIM para Instalações Elétricas Prediais possibilita simulações de consumo, ajudando a definir soluções mais econômicas e sustentáveis.

Aplicações do BIM para Instalações Elétricas Prediais

Edifícios residenciais
Nos empreendimentos residenciais, o BIM para Instalações Elétricas Prediais garante maior confiabilidade, valorização do imóvel e facilidade de manutenção futura.

Edifícios comerciais
Em projetos comerciais, o BIM para Instalações Elétricas Prediais proporciona segurança, eficiência e integração entre sistemas, contribuindo para operações mais confiáveis.

Galpões e edifícios corporativos
Em grandes edificações, o BIM para Instalações Elétricas Prediais assegura que sistemas complexos funcionem de forma integrada, garantindo a eficiência energética e a segurança.

Como funciona o BIM para Instalações Elétricas Prediais

O desenvolvimento de um projeto em BIM para Instalações Elétricas Prediais segue etapas estruturadas:

  • Modelagem digital detalhada das instalações elétricas.
  • Integração com as demais disciplinas da obra.
  • Identificação e correção de interferências.
  • Extração automática de quantitativos e relatórios.
  • Planejamento de prazos e custos com maior precisão.

O diferencial da Argenbras Engenharia

A Argenbras Engenharia alia tecnologia, experiência de mercado e equipe qualificada para oferecer excelência em BIM para Instalações Elétricas Prediais. Cada projeto é desenvolvido de forma personalizada, com foco em atender às necessidades específicas do cliente e às normas regulamentadoras.

Benefícios diretos do BIM para Instalações Elétricas Prediais

Adotar o BIM para Instalações Elétricas Prediais traz benefícios claros e imediatos:

  • Redução de erros durante a execução.
  • Maior previsibilidade de custos e prazos.
  • Comunicação eficiente entre equipes.
  • Melhor aproveitamento dos recursos.
  • Valorização do empreendimento.

Por que o BIM para Instalações Elétricas Prediais é um diferencial competitivo

Empresas que investem em BIM para Instalações Elétricas Prediais saem na frente, entregando empreendimentos mais modernos, seguros e sustentáveis. Essa metodologia transmite confiança a investidores e clientes finais, destacando o empreendimento no mercado. A Argenbras Engenharia oferece esse diferencial como parceira estratégica.

BIM para Instalações Elétricas Prediais: um investimento estratégico

Mais do que uma tendência, o BIM para Instalações Elétricas Prediais é uma realidade consolidada na engenharia moderna. Com a Argenbras Engenharia, cada detalhe é planejado para garantir eficiência energética, inovação e segurança, transformando obras em referências de qualidade.

Se você busca modernidade, segurança e precisão, o BIM para Instalações Elétricas Prediais da Argenbras Engenharia é a solução ideal. Nossa equipe está preparada para transformar seu projeto em um exemplo de excelência e inovação.

Entre em contato agora mesmo com a Argenbras Engenharia, solicite um orçamento e descubra como o BIM para Instalações Elétricas Prediais pode elevar o padrão do seu empreendimento.

Entre agora mesmo em contato com a Argenbras Engenharia para ter mais informações sobre: Projeto em Revit, Projeto SPDA em BIM, Projetos de Instalações Elétricas em BIM, Revit para Projetos Elétricos.

Gostou? Compartilhe:

Artigos relacionados a :