(11) 3785-7918 (11) 99549-0336 contato@argenbrasengenharia.com.br

Projeto de Instalações Prediais em Revit

Projeto de Instalações Prediais em Revit

Projeto de Instalações Prediais em Revit: A Inovação da Argenbras Engenharia

A importância do Projeto de Instalações Prediais em Revit

O Projeto de Instalações Prediais em Revit vem revolucionando a forma como arquitetos, engenheiros e construtores planejam e executam obras. Essa metodologia permite integrar em um único ambiente digital todas as disciplinas envolvidas, como elétrica, hidráulica, sanitária e climatização. A Argenbras Engenharia utiliza essa tecnologia para oferecer soluções modernas, seguras e eficientes, que garantem maior previsibilidade e reduzem falhas durante a execução.

O que é um Projeto de Instalações Prediais em Revit?

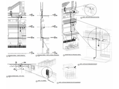
Um Projeto de Instalações Prediais em Revit é um modelo digital desenvolvido dentro da plataforma BIM (Building Information Modeling), que permite criar representações tridimensionais com informações técnicas detalhadas. Diferente do desenho tradicional em 2D, esse tipo de projeto oferece uma visão completa das instalações, facilitando a compatibilização e a tomada de decisões em todas as etapas da obra.

Vantagens do Projeto de Instalações Prediais em Revit com a Argenbras Engenharia

Integração entre disciplinas
A Argenbras Engenharia garante que, com o Projeto de Instalações Prediais em Revit, todas as áreas estejam perfeitamente compatibilizadas, evitando erros e retrabalhos que podem gerar custos adicionais.

Precisão nos detalhes
Cada elemento do Projeto de Instalações Prediais em Revit é modelado com dados reais, proporcionando confiabilidade e segurança no planejamento.

Otimização de tempo e recursos
Com a detecção antecipada de interferências e a geração automática de quantitativos, o Projeto de Instalações Prediais em Revit ajuda a reduzir prazos e desperdícios.

Sustentabilidade e eficiência energética
O Projeto de Instalações Prediais em Revit permite simulações de consumo energético e dimensionamento adequado de sistemas, possibilitando soluções alinhadas às práticas sustentáveis.

Aplicações do Projeto de Instalações Prediais em Revit

Edifícios residenciais
Em prédios residenciais, o Projeto de Instalações Prediais em Revit assegura qualidade na distribuição de energia, água, gás e climatização, garantindo conforto e segurança para os moradores.

Edifícios comerciais
No setor corporativo, o Projeto de Instalações Prediais em Revit facilita a criação de ambientes modernos, funcionais e de fácil manutenção, otimizando o desempenho do empreendimento.

Centros logísticos e hospitais
Para projetos mais complexos, como hospitais e centros logísticos, o Projeto de Instalações Prediais em Revit é essencial para planejar sistemas robustos e compatíveis com todas as exigências técnicas e normativas.

A metodologia BIM no Projeto de Instalações Prediais em Revit

Ao aplicar o BIM em conjunto com o Revit, a Argenbras Engenharia assegura que o Projeto de Instalações Prediais em Revit seja mais do que um desenho técnico. Trata-se de um banco de dados completo, que reúne informações sobre materiais, dimensionamentos, cargas e sistemas, permitindo tomadas de decisão mais rápidas e eficazes.

Como o Projeto de Instalações Prediais em Revit impacta sua obra

Adotar o Projeto de Instalações Prediais em Revit traz impactos positivos diretos:

  • Redução de erros durante a execução.
  • Melhor aproveitamento dos recursos disponíveis.
  • Transparência nos custos e prazos.
  • Comunicação mais clara entre todas as equipes.
  • Valorização do empreendimento no mercado.

O diferencial da Argenbras Engenharia

A Argenbras Engenharia alia tecnologia, experiência e dedicação ao cliente em cada Projeto de Instalações Prediais em Revit. Nossa equipe é formada por engenheiros especializados que desenvolvem projetos sob medida, respeitando as normas técnicas e priorizando a eficiência em cada etapa.

Por que o Projeto de Instalações Prediais em Revit é um diferencial competitivo

No mercado atual, empresas que investem em um Projeto de Instalações Prediais em Revit saem na frente da concorrência. Essa solução transmite credibilidade, agrega valor ao imóvel e garante que a obra seja realizada com excelência. A Argenbras Engenharia é reconhecida por entregar projetos inteligentes e compatibilizados, sendo a parceira ideal para quem busca inovação.

Projeto de Instalações Prediais em Revit: um investimento estratégico

Mais do que uma tendência, o Projeto de Instalações Prediais em Revit é uma realidade que está transformando o setor da construção civil. Ao escolher a Argenbras Engenharia, você garante que seu empreendimento seja planejado com tecnologia de ponta, segurança e qualidade.

Se você busca inovação, eficiência e qualidade, o Projeto de Instalações Prediais em Revit desenvolvido pela Argenbras Engenharia é a escolha ideal. Com nossa expertise, cada detalhe do seu projeto é cuidadosamente planejado para entregar resultados superiores.

Entre em contato agora mesmo com a Argenbras Engenharia, solicite um orçamento e descubra como o Projeto de Instalações Prediais em Revit pode transformar o seu empreendimento em um exemplo de modernidade e excelência.

Entre agora mesmo em contato com a Argenbras Engenharia para ter mais informações sobre: BIM para Instalações Elétricas Prediais, Compatibilização de Projetos Elétricos em Revit, Empresa de Projeto Contra Descargas Atmosféricas em SP.

Gostou? Compartilhe:

Artigos relacionados a :