(11) 3785-7918 (11) 99549-0336 contato@argenbrasengenharia.com.br

Projeto Elétrico Predial em BIM

Projeto Elétrico Predial em BIM

Projeto Elétrico Predial em BIM: A Solução Inteligente da Argenbras Engenharia

Por que investir em um Projeto Elétrico Predial em BIM?

O Projeto Elétrico Predial em BIM é uma ferramenta fundamental para quem deseja precisão, eficiência e modernidade em obras residenciais, comerciais e corporativas. A tecnologia BIM (Building Information Modeling) associada ao desenvolvimento de projetos elétricos garante maior integração entre disciplinas, previsibilidade de custos e redução de falhas durante a execução. A Argenbras Engenharia é especialista nessa metodologia e oferece soluções completas que valorizam cada empreendimento.

O que é um Projeto Elétrico Predial em BIM?

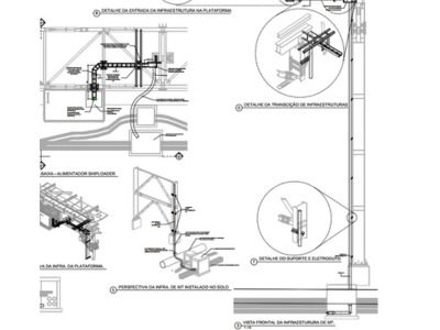
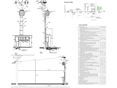
Um Projeto Elétrico Predial em BIM é mais do que um desenho técnico. Trata-se de um modelo digital inteligente que reúne todas as informações da instalação elétrica de um prédio, desde a distribuição de circuitos até o dimensionamento de cabos e disjuntores. Esse modelo integra dados em 3D e informações técnicas, facilitando a compatibilização com arquitetura, hidráulica, climatização e estrutura.

Vantagens do Projeto Elétrico Predial em BIM com a Argenbras Engenharia

  • Precisão nos detalhes
    Com o Projeto Elétrico Predial em BIM, cada elemento é parametrizado com informações reais, garantindo confiabilidade no planejamento e evitando retrabalhos.
  • Compatibilização de disciplinas
    A Argenbras Engenharia assegura que o Projeto Elétrico Predial em BIM seja desenvolvido em sintonia com todas as outras áreas do empreendimento, prevenindo conflitos e garantindo fluidez na execução.
  • Economia de tempo e custos
    Um dos grandes diferenciais do Projeto Elétrico Predial em BIM é a capacidade de identificar interferências antes da execução, reduzindo atrasos e eliminando desperdícios.
  • Sustentabilidade e eficiência
    A utilização do Projeto Elétrico Predial em BIM possibilita simulações de eficiência energética, auxiliando na adoção de soluções mais sustentáveis e econômicas.

Aplicações do Projeto Elétrico Predial em BIM

  • Prédios residenciais
    Nos empreendimentos residenciais, o Projeto Elétrico Predial em BIM garante segurança na distribuição de energia, valorização do imóvel e maior confiabilidade para moradores e construtoras.
  • Edifícios comerciais e corporativos
    Em ambientes comerciais, o Projeto Elétrico Predial em BIM é essencial para atender grandes demandas de energia e sistemas de automação, sempre em conformidade com as normas técnicas.
  • Centros de saúde e educacionais
    Hospitais, clínicas e escolas necessitam de planejamento detalhado. O Projeto Elétrico Predial em BIM assegura instalações seguras e eficientes, que atendem às exigências específicas desses ambientes.

Como o Projeto Elétrico Predial em BIM impacta sua obra

Adotar um Projeto Elétrico Predial em BIM traz resultados práticos e estratégicos para construtoras e investidores:

  • Redução significativa de erros.
  • Maior previsibilidade de custos e prazos.
  • Transparência nos quantitativos de materiais.
  • Comunicação clara entre equipes.
  • Valorização e credibilidade do empreendimento.

O diferencial da Argenbras Engenharia

A Argenbras Engenharia alia expertise técnica, inovação e atendimento personalizado para entregar o melhor em Projeto Elétrico Predial em BIM. Nossa equipe é formada por engenheiros altamente qualificados que desenvolvem projetos sob medida, respeitando normas e garantindo máxima eficiência.

Por que o Projeto Elétrico Predial em BIM é um diferencial competitivo

Empresas que investem em um Projeto Elétrico Predial em BIM se destacam no mercado da construção civil por oferecer projetos modernos, sustentáveis e altamente confiáveis. A Argenbras Engenharia posiciona seus clientes à frente da concorrência, entregando soluções que fazem a diferença.

Projeto Elétrico Predial em BIM: um investimento no futuro

Mais do que uma tendência, o Projeto Elétrico Predial em BIM é uma realidade consolidada. Essa tecnologia representa um avanço significativo para quem busca segurança, inovação e qualidade em obras prediais. A Argenbras Engenharia está preparada para transformar cada projeto em um exemplo de excelência e eficiência.

Se você deseja garantir qualidade, inovação e economia em sua obra, o Projeto Elétrico Predial em BIM da Argenbras Engenharia é a escolha certa. Cada detalhe é planejado com rigor técnico e foco em resultados superiores.

Entre em contato agora mesmo com a Argenbras Engenharia, solicite um orçamento e descubra como o Projeto Elétrico Predial em BIM pode transformar o seu empreendimento em um exemplo de modernidade e eficiência.

Entre agora mesmo em contato com a Argenbras Engenharia para ter mais informações sobre: Modelagem Elétrica em Revit, Orçamento de Projeto Elétrico em BIM, Projeto Contra Descargas Atmosféricas em Industrias, Projeto de Instalações Prediais em Revit.

Gostou? Compartilhe:

Artigos relacionados a :