(11) 3785-7918 (11) 99549-0336 contato@argenbrasengenharia.com.br

Projeto em BIM para Galpões Logísticos

Projeto em BIM para Galpões Logísticos

Projeto em BIM para Galpões Logísticos: A Expertise da Argenbras Engenharia

Por que investir em Projeto em BIM para Galpões Logísticos?

O Projeto em BIM para Galpões Logísticos é hoje uma das soluções mais modernas para quem busca eficiência, segurança e precisão na construção e gestão de centros de armazenagem e distribuição. Em um setor que exige alto nível de organização e funcionalidade, a metodologia BIM (Building Information Modeling) aplicada pela Argenbras Engenharia permite integrar todas as etapas do projeto em um único modelo digital inteligente. Isso garante redução de custos, previsibilidade de prazos e total compatibilidade entre disciplinas.

O que é um Projeto em BIM para Galpões Logísticos?

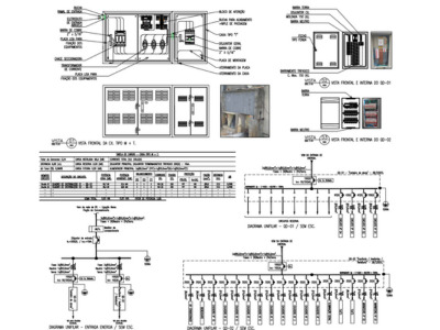
Um Projeto em BIM para Galpões Logísticos é o desenvolvimento de todo o planejamento arquitetônico, estrutural, elétrico e hidráulico dentro de um modelo digital tridimensional. Esse modelo reúne informações técnicas detalhadas sobre cada componente do galpão, desde a fundação até os sistemas de iluminação e segurança. Diferente do método tradicional em 2D, o BIM permite prever cenários, calcular quantitativos e visualizar de forma realista a obra antes mesmo da execução.

Vantagens do Projeto em BIM para Galpões Logísticos com a Argenbras Engenharia

  • Precisão nos detalhes
    O Projeto em BIM para Galpões Logísticos garante maior precisão no dimensionamento dos espaços, distribuição de energia e planejamento de sistemas de climatização e segurança.
  • Compatibilização entre disciplinas
    Com a Argenbras Engenharia, o Projeto em BIM para Galpões Logísticos é desenvolvido de forma integrada, evitando conflitos entre arquitetura, elétrica, hidráulica e estrutura, e garantindo maior eficiência na execução.
  • Economia de tempo e custos
    Ao identificar interferências antes da obra, o Projeto em BIM para Galpões Logísticos reduz retrabalhos, otimiza a compra de materiais e assegura prazos mais bem definidos.
  • Sustentabilidade e eficiência
    O uso de um Projeto em BIM para Galpões Logísticos permite simular consumo energético, prever iluminação natural e planejar soluções sustentáveis que contribuem para redução de custos a longo prazo.

Aplicações do Projeto em BIM para Galpões Logísticos

  • Centros de distribuição
    Nos centros de distribuição, o Projeto em BIM para Galpões Logísticos garante que cada detalhe seja planejado para facilitar o fluxo de mercadorias, o armazenamento seguro e a movimentação eficiente.
  • Indústrias
    Para indústrias que utilizam galpões logísticos como apoio à produção, o Projeto em BIM para Galpões Logísticos assegura a correta instalação de maquinários, pontos de energia e sistemas de segurança.
  • E-commerce e varejo
    Com o crescimento do comércio eletrônico, o Projeto em BIM para Galpões Logísticos se tornou fundamental para empresas que buscam agilidade no atendimento e eficiência operacional.

O diferencial da Argenbras Engenharia

A Argenbras Engenharia alia tecnologia de ponta, expertise técnica e experiência de mercado para entregar o melhor em Projeto em BIM para Galpões Logísticos. Nossa equipe de engenheiros especializados garante que cada projeto seja desenvolvido com foco na eficiência, segurança e inovação.

Como o Projeto em BIM para Galpões Logísticos impacta sua obra

Optar por um Projeto em BIM para Galpões Logísticos traz impactos diretos e positivos:

  • Redução de erros e retrabalhos.
  • Transparência nos custos e prazos.
  • Comunicação clara entre as equipes envolvidas.
  • Maior valorização do empreendimento.
  • Otimização da operação logística.

Por que o Projeto em BIM para Galpões Logísticos é um diferencial competitivo

Empresas que investem em um Projeto em BIM para Galpões Logísticos se destacam no mercado por entregar empreendimentos mais modernos, eficientes e sustentáveis. A Argenbras Engenharia se posiciona como parceira estratégica, oferecendo projetos que atendem às normas regulamentadoras e às necessidades específicas de cada cliente.

Projeto em BIM para Galpões Logísticos: um investimento estratégico

Mais do que uma tendência, o Projeto em BIM para Galpões Logísticos é uma realidade que transforma a forma como construímos e gerenciamos centros logísticos. Com a Argenbras Engenharia, você garante que seu empreendimento seja planejado com tecnologia de ponta, reduzindo riscos e aumentando a eficiência operacional.

Se você busca modernidade, eficiência e segurança, o Projeto em BIM para Galpões Logísticos desenvolvido pela Argenbras Engenharia é a escolha ideal. Cada detalhe é pensado para proporcionar resultados superiores e garantir que sua obra seja concluída com excelência.

Entre em contato agora mesmo com a Argenbras Engenharia, solicite um orçamento e descubra como o Projeto em BIM para Galpões Logísticos pode transformar o seu empreendimento em referência de inovação e qualidade.

Entre agora mesmo em contato com a Argenbras Engenharia para ter mais informações sobre: Projeto de SPDA em Revit, Projeto de Sistema Contra Raios, Projeto Elétrico em BIM, Projeto Elétrico em Revit em São Paulo.

Gostou? Compartilhe:

Artigos relacionados a :